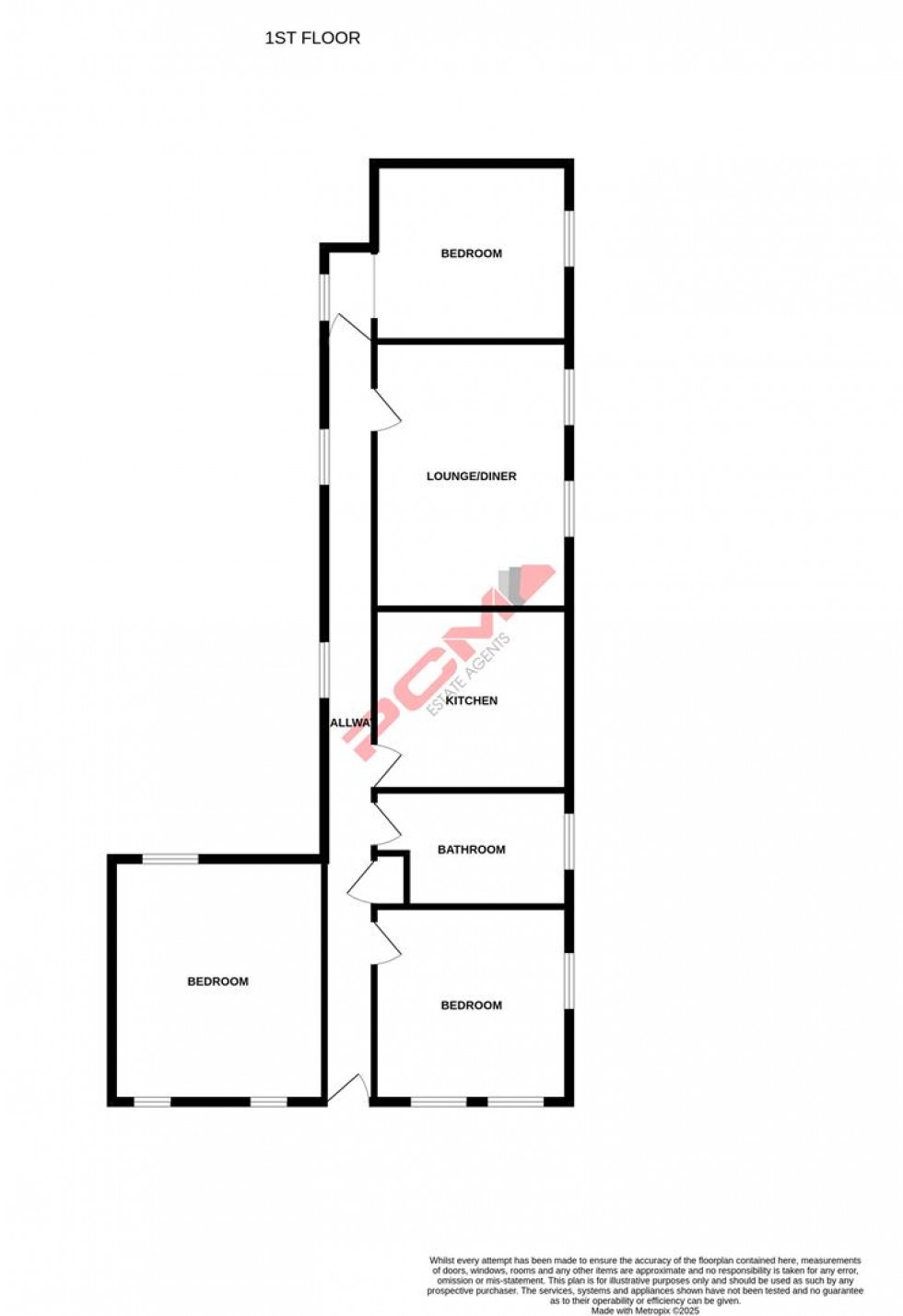
Floorplan for Linton Road, Hastings
EPC Graph for Linton Road, Hastings

3 Bedrooms Flat - Conversion - For Sale Linton Road, Hastings
Price £210,000

3 1 1

PCM Estate Agents are delighted to present to the market this FIRST FLOOR THREE BEDROOM FLAT with PRIVATE ENTRANCE, PRIVATE SECTION OF GARDEN, gas central heating and double glazing. Step inside to be greeted by a spacious entrance hall, LOUNGE-DINER, MODERN KITCHEN & BATHROOM and THREE DOUBLE...

PCM Estate Agents are delighted to present to the market this FIRST FLOOR THREE BEDROOM FLAT with PRIVATE ENTRANCE, PRIVATE SECTION OF GARDEN, gas central heating and double glazing.

Step inside to be greeted by a spacious entrance hall, LOUNGE-DINER, MODERN KITCHEN & BATHROOM and THREE DOUBLE BEDROOMS.

Conveniently located within easy reach of amenities within Hastings town centre, on a sought-after road, with nearby amenities including Hastings mainline railway station with convenient links to London, a variety of shops and Hastings seafront and promenade.

Viewing comes highly recommended, please call the owners agents now to book your appointment.

Key Features

  • First Floor Flat
  • 16ft Lounge-Diner
  • 11ft Kitchen
  • Three Double Bedrooms
  • Private Entrance
  • Private Section of Garden
  • Close to Town Centre and Linton Gardens
  • Council Tax Band B

ACCESS VIA METAL STAIRCASE

Leading to a private front door at the rear, opening to:

ENTRANCE HALL

Wood laminate flooring, radiator, down lights, loft hatch providing access to loft space, storage cupboard, two double glazed windows to side aspect.

LOUNGE 5.03m x 3.43m (16'6 x 11'3)

Wood laminate flooring, radiator, double glazed windows to side aspect.

KITCHEN 3.35m x 2.90m (11' x 9'6)

Tiled flooring, wall mounted boiler, down lights, double glazed window too side aspect. Modern and built with a matching range of eye and base level cupboards and drawers with worksurfaces over, four ring gas hob with oven below and cooker hood over, inset drainer-sink unit with mixer tap, space and plumbing for washing machine, space for tall fridge freezer, tiled flooring.

BEDROOM 4.47m x 3.89m (14'8 x 12'9 )

Radiator, wood laminate flooring, dual aspect room with double glazed windows to rear and side elevations.

BEDROOM 3.63m x 3.43m (11'11 x 11'3)

Wood laminate flooring, radiator, dual aspect room with double glazed windows to rear and side elevations.

BEDROOM 3.18m x 3.18m (10'5 x 10'5)

Measurement excludes door recess. Wood laminate flooring radiator, double glazed window to both side elevations.

BATHROOM

Modern and comprising a panelled bath with mixer tap and shower attachment, dual flush low level wc, vanity enclosed wash hand basin with chrome mixer tap, extractor fan for ventilation, down lights, chrome ladder style heated towel rail, double glazed opaque glass window to side aspect.

GARDEN

Accessed via the metal steps, leading to a private section of garden.

TENURE

We have been advised of the following by the vendor: Lease: New lease upon completion Service Charge: TBC Ground Rent: TBC

OUTBUILDING

Containing the meters for all four flats within the building.


Location

Similar Properties