Floorplan for Emmanuel Road, Hastings

4 Bedrooms House - Terraced - For Sale Emmanuel Road, Hastings
Guide Price £265,000

4 1 1

** GUIDE PRICE £265,000 - £280,000 ** PCM Estate Agents are delighted to present to the market an opportunity to acquire this THREE STOREY FOUR BEDROOM HOUSE, conveniently positioned on this sought-after road within the West Hill region of Hastings. The property is IN NEED OF SOME...

** GUIDE PRICE £265,000 - £280,000 **
PCM Estate Agents are delighted to present to the market an opportunity to acquire this THREE STOREY FOUR BEDROOM HOUSE, conveniently positioned on this sought-after road within the West Hill region of Hastings. The property is IN NEED OF SOME MODERNISATION but offers potential for the new owner to make their own.

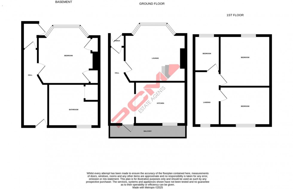
Accommodation is arranged over three floors comprising a lower floor with BEDROOM and bathroom, ground floor with LOUNGE and KITCHEN, whilst to the first floor there are THREE BEDROOMS. Externally the property benefits from a BALCONY and a PRIVATE REAR GARDEN that are in need of work/ cultivation.

Positioned within easy reach of Hastings historic Old Town, popular schooling establishments within the area and amenities. Viewing comes highly recommended, please call the owners agents now to book your appointment.

Key Features

  • Mid Terraced House
  • Arranged over Three Storeys
  • Lounge & Kitchen
  • Four Bedrooms
  • Bathroom/ Utility
  • Balcony & Rear Garden
  • Council Tax Band B
  • In Need of Modernisation

WOODEN PARTIALLY GLAZED FRONT DOOR

Opening into:

PORCH

Window to side aspect, further wooden partially glazed door opening into:

ENTRANCE HALL

Stairs to upper and lower floor accommodation, leading to:

LIVING ROOM 4.14m x 4.09m (13'7 x 13'5)

High ceilings with cornicing, dado rail, wood laminate flooring, brick fireplace, television point, wooden framed sash window to front aspect.

KITCHEN 3.56m x 2.92m (11'8 x 9'7)

Tiled flooring, partially wood panelled walls, fitted with a range of eye and base level cupboards and drawers with worksurfaces over, space for gas cooker, inset drainer-sink unit, space and plumbing for dishwasher, space for under counter fridge freezer, wall mounted boiler, double glazed window to rear aspect with lovely townscape views.

BALCONY

Wooden balustrade.

FIRST FLOOR LANDING

Half landing with wooden framed single glazed window to rear aspect with pleasant townscape views, main landing with loft hatch providing access to loft space, additional built in storage.

BEDROOM 3.43m x 3.38m (11'3 x 11'1)

Wood laminate flooring, built in storage, wooden framed sash window to front aspect.

BEDROOM 3.40m x 3.10m (11'2 x 10'2 )

Wood laminate flooring, built in storage, wooden framed single glazed window to rear aspect with pleasant townscape views.

BEDROOM 2.26m x 1.65m (7'5 x 5'5)

Single glazed wooden framed window to front aspect.

LOWER FLOOR HALL

Door to front providing access to street, rear door providing access to garden. Further doors to:

BEDROOM 4.14m x 4.09m (13'7 x 13'5)

Built in storage, wooden framed single glazed sash bay window to front aspect.

BATHROOM/ UTILITY

Panelled bath with shower over, low level wc, wall mounted wash hand basin, utility cupboard, space and plumbing for washing machine and tumble dryer, extractor fan for ventilation, window with obscured glass to rear aspect.

REAR GARDEN

Enclosed and in need of cultivation, walled and fenced boundaries, townscape views.


Location

Similar Properties