Floorplan for Milward Road, Hastings

1 Bedroom Flat - Conversion - For Sale Milward Road, Hastings
Price £159,995

1 1 1

PCM are delighted to present to the market this beautifully presented one-bedroom courtyard apartment, set across the ground floor of an attractive residence, offering a perfect blend of style, comfort, and coastal living. Ideally positioned in a highly sought-after central location, the...

PCM are delighted to present to the market this beautifully presented one-bedroom courtyard apartment, set across the ground floor of an attractive residence, offering a perfect blend of style, comfort, and coastal living.

Ideally positioned in a highly sought-after central location, the property is just moments from the vibrant shops at Priory Meadow, the seafront, Alexandra Park, and Hastings mainline station with direct links to London, making it as convenient as it is desirable.

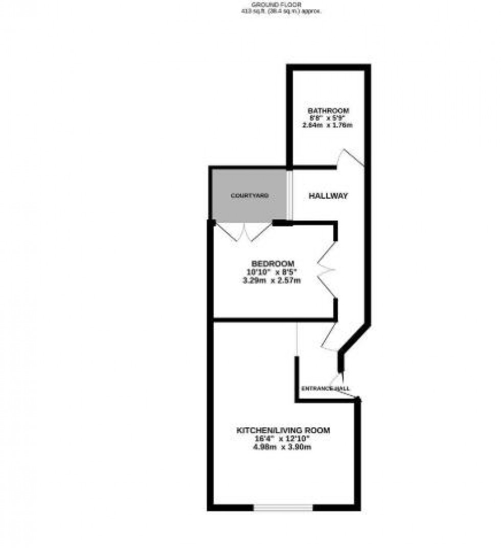
The accommodation is centred around an impressive open-plan living space, thoughtfully designed for both relaxing and entertaining. A sleek, modern fitted kitchen provides generous storage and ample worktop space, creating a practical yet elegant heart to the home.
To the rear, the spacious double bedroom complete with double doors opening directly onto a private courtyard, a perfect spot for morning coffee or evening unwinding. The bathroom is stylishly appointed with a bath and shower over, while a wide hallway enhances the sense of space and includes useful built-in storage.

With the added benefit of a share of freehold, this exceptional property presents an outstanding opportunity as a first home, weekend escape, or stylish seaside retreat, a home that truly captures the essence of coastal living.

Key Features

  • One Bedroom Courtyard Apartment
  • Ground Floor
  • Open Plan Living Space
  • Sleek, Modern Kitchen
  • Spacious Double Bedroom
  • Private Courtyard
  • Close To Town Centre and Mainline Station
  • Share Of Freehold

COMMUNAL FRONT DOOR

Leading to communal entrance hall, private front door to:

ENTRANCE HALL

Wall mounted entry phone system, further door to:

LOUNGE-DINER

16'6 narrowing to 10'7 x 13'1 max narrowing to 7'6 (5.03m narrowing to 3.23m x 3.99m max narrowing to 2.29m) Large double glazed window to front aspect, high ceilings with recessed lighting, feature ceiling light, partially wood panelled walls, wall mounted electric fire and television point,.

KITCHEN

Fitted with a matching range of eye and base level cupboards and drawers fitted with soft close hinges and having complimentary worksurfaces and tiled splashbacks, electric hob with oven below and cooker hood over, inset sunken stainless steel sink with mixer spray tap, under counter combination fridge freezer and integrated washing machine.

INNER HALLWAY

Ample built in storage, radiator, picture window framing views over the courtyard garden, doors to:

BEDROOM 3.35m x 3.05m (11' x 10')

High ceilings with recessed lighting and feature ceiling light, partially wood panelled walls, dado rail, radiator, double glazed French doors providing access to a courtyard style garden.

BATHROOM

Panelled bath with mixer tap and shower attachment, pedestal wash hand basin, low level wc, part tiled walls, tiled flooring, heated towel rail, extractor fan for ventilation.

COURTYARD

Composite decking, ample space for bistro style table and chairs.

TENURE

We have been advised of the following by the vendor: Share of freehold - transferrable with the sale. Service Charge: A third of any costs.


Location

Similar Properties