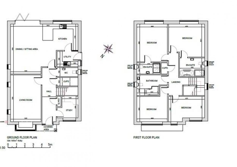
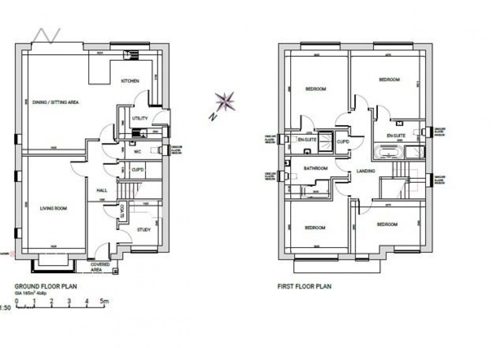
Floorplan for Shirley Drive, St. Leonards-On-Sea

Land - For Sale Shirley Drive, St. Leonards-On-Sea
Offers In Excess Of £350,000

INVESTMENT OPPORTUNITY - TWO BUILDING PLOTS WITH PLANNING! PCM Estate Agents offer to the market an opportunity to acquire TWO BUILDING PLOTS with PLANNING PERMISSION for the erection of TWO DETACHED FOUR BEDROOM HOUSE's, with 185 sq/m of internal living space. The accommodation will be...

INVESTMENT OPPORTUNITY - TWO BUILDING PLOTS WITH PLANNING!

PCM Estate Agents offer to the market an opportunity to acquire TWO BUILDING PLOTS with PLANNING PERMISSION for the erection of TWO DETACHED FOUR BEDROOM HOUSE's, with 185 sq/m of internal living space.

The accommodation will be arranged over two floors comprising a spacious entrance hall, living room, OPEN PLAN KITCHEN-DINING ROOM at the rear of the house with access onto the garden, UTILITY ROOM, ground floor WC and a STUDY. To the first floor a spacious landing will provide access to FOUR BEDROOMS, two of which have EN-SUITE FACILITIES, and a family bathroom. The plot will also benefit from a driveway providing OFF ROAD PARKING for up to two vehicles.

More information can be found on Hastings Planning Portal under reference: HS/FA/25/00334.

Please call the owners agents now to express your interest.

Key Features

  • Two Building Plots
  • Planning Approved
  • Detached House with Parking
  • Open Plan Kitchen-Dining Room
  • Ground Floor WC & Study
  • Four Bedrooms
  • Two En-Suites
  • HS/FA/25/00334
  • CHAIN FREE

Location