Floorplan for Shirley Drive, St. Leonards-On-Sea

Land - Building Plot - For Sale Shirley Drive, St. Leonards-On-Sea
Offers In The Region Of £200,000

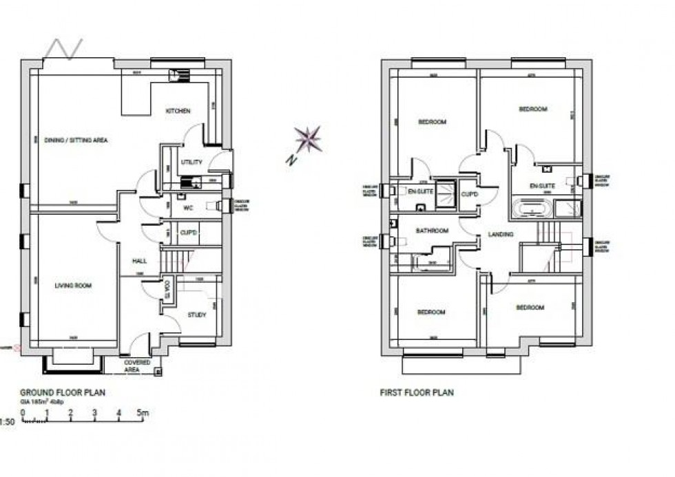
INVESTMENT OPPORTUNITY - BUILDING PLOT WITH PLANNING - ONE OF TWO AVAILABLE. PCM Estate Agents offer to the market an opportunity to acquire a BUILDING PLOT with PLANNING PERMISSION for the erection of a DETACHED FOUR BEDROOM HOUSE, with 185 sq/m of internal living space. The accommodation...

INVESTMENT OPPORTUNITY - BUILDING PLOT WITH PLANNING - ONE OF TWO AVAILABLE.

PCM Estate Agents offer to the market an opportunity to acquire a BUILDING PLOT with PLANNING PERMISSION for the erection of a DETACHED FOUR BEDROOM HOUSE, with 185 sq/m of internal living space.

The accommodation will be arranged over two floors comprising a spacious entrance hall, living room, OPEN PLAN KITCHEN-DINING ROOM at the rear of the house with access onto the garden, UTILITY ROOM, ground floor WC and a STUDY. To the first floor a spacious landing will provide access to FOUR BEDROOMS, two of which have EN-SUITE FACILITIES, and a family bathroom. The plot will also benefit from a driveway providing OFF ROAD PARKING for up to two vehicles.

More information can be found on Hastings Planning Portal under reference: HS/FA/25/00334.

Please call the owners agents now to express your interest.

Key Features

  • Building Plot
  • Planning Approved
  • Detached House with Parking
  • Open Plan Kitchen-Dining Room
  • Ground Floor WC & Study
  • Four Bedrooms
  • Two En-Suites
  • HS/FA/25/00334
  • CHAIN FREE

Location